633 Dogwood LNCottonwood Shores, TX 78657

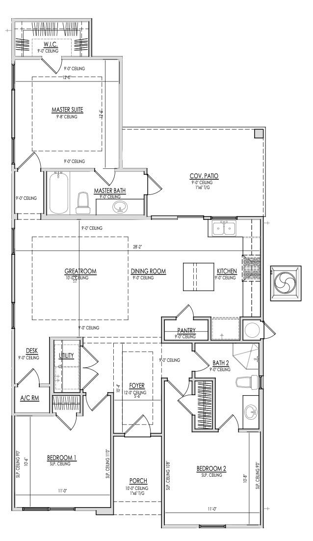
Welcome to 633 Dogwood Lane in Cottonwood Shores, TX! This stunning new construction home is set for completion in 2026 and offers the perfect blend of modern style and functional design. With over 1,200 square feet of thoughtfully planned living space, this home features 3 spacious bedrooms and 2 full bathrooms, making it ideal for both everyday living and entertaining. Framing is already going up, making this the perfect time to jump in and finish the design to your liking. Step inside to find a bright and airy open-concept floor plan where the living, dining, and kitchen spaces flow seamlessly together. The vaulted living room ceiling and modern roof pitches create a dramatic architectural touch, while large windows invite abundant natural light throughout the home. The kitchen is designed with both style and function in mind, boasting sleek quartz countertops and ample storage to inspire every home chef. The primary suite offers a peaceful retreat with its own private bathroom, while two additional bedrooms provide flexibility for guests, a home office, or hobbies. A large covered back patio expands your living space outdoors, perfect for relaxing or entertaining year-round. Located in Cottonwood Shores, you’ll enjoy a friendly lakeside community just minutes from Marble Falls and the Highland Lakes. Don’t miss this chance to customize and own brand-new construction in 2026!
| 4 weeks ago | Listing first seen on site | |
| 4 weeks ago | Listing updated with changes from the MLS® |
All information provided is deemed reliable but is not guaranteed and should be independently verified. Listings courtesy of ACTRIS as distributed by MLS GRID. The Austin Board of REALTORS®, ACTRIS and their affiliates provide the MLS and all content therein "AS IS" and without any warranty, express or implied.
Last checked - 2025-10-30 11:26 AM CDT
REQUIRED DMCA NOTICE Member Participant’s IDX site must comply with The Digital Millennium Copyright Act of 1998 by including appropriate notification instructions to users. A Vendor or Member Participant that receives a DMCA notice of infringement must immediately (no later than 24 hours after receipt) notify MLS GRID at DMCAnotice@MLSGrid.com. A Member Participant’s IDX site must include the conspicuous display of the following two paragraphs: The Digital Millennium Copyright Act of 1998, 17 U.S.C. § 512 (the “DMCA”) provides recourse for copyright owners who believe that material appearing on the Internet infringes their rights under U.S. copyright law. If you believe in good faith that any content or material made available in connection with our website or services infringes your copyright, you (or your agent) may send us a notice requesting that the content or material be removed, or access to it blocked. Notices must be sent in writing by email to DMCAnotice@MLSGrid.com. “The DMCA requires that your notice of alleged copyright infringement include the following information: (1) description of the copyrighted work that is the subject of claimed infringement; (2) description of the alleged infringing content and information sufficient to permit us to locate the content; (3) contact information for you, including your address, telephone number and email address; (4) a statement by you that you have a good faith belief that the content in the manner complained of is not authorized by the copyright owner, or its agent, or by the operation of any law; (5) a statement by you, signed under penalty of perjury, that the information in the notification is accurate and that you have the authority to enforce the copyrights that are claimed to be infringed; and (6) a physical or electronic signature of the copyright owner or a person authorized to act on the copyright owner’s behalf. Failure to include all of the above information may result in the delay of the processing of your complaint.

Did you know? You can invite friends and family to your search. They can join your search, rate and discuss listings with you.