254 Dora DRKilleen, TX 76542




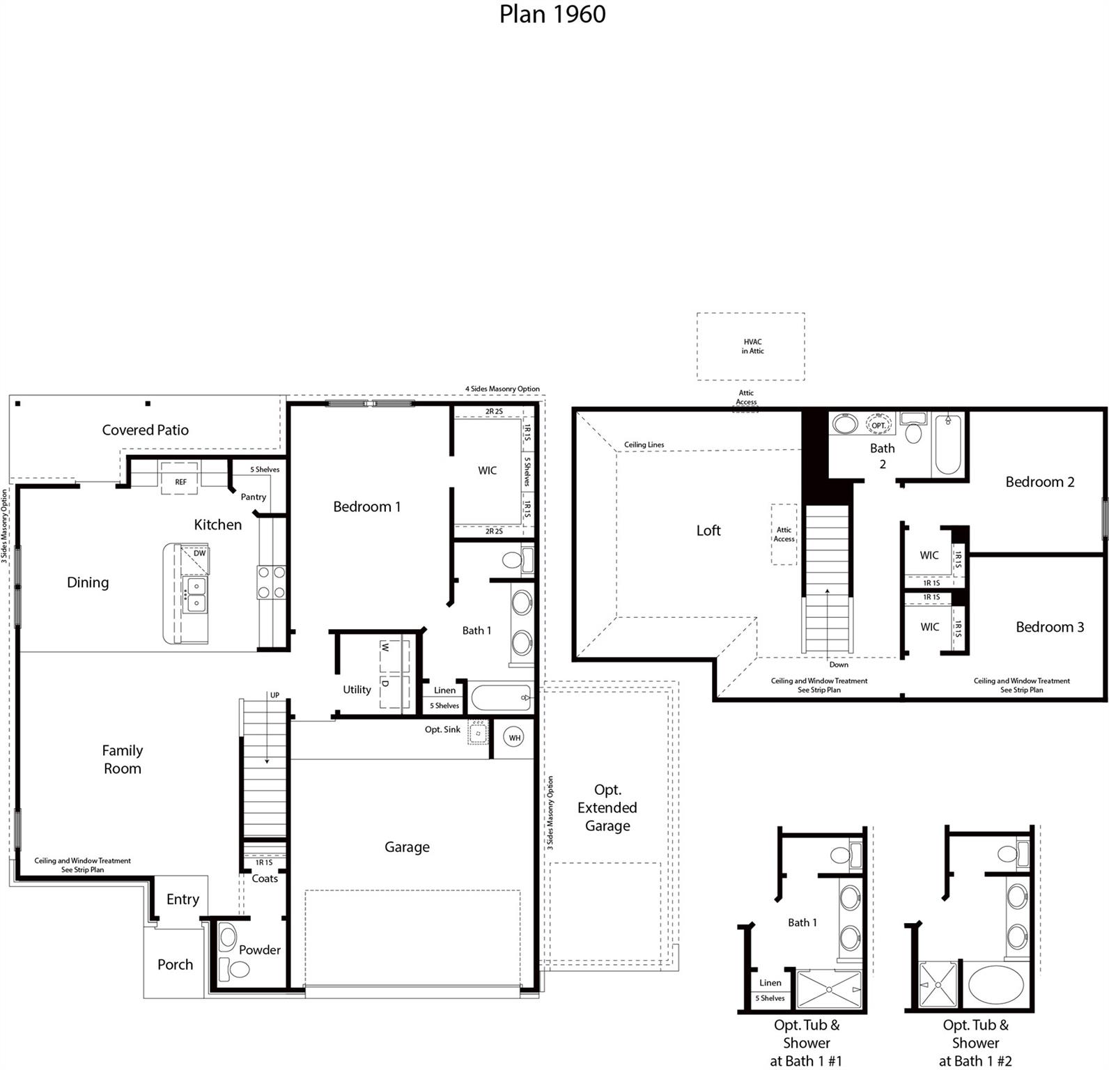
Come see our spacious Sterling floorplan in Killeen, Texas at Turnbo Ranch Traditions, with 3 bedrooms and 2.5 bathrooms. This carefully designed floorplan spans at an approximate 1,998 sq. ft. When you enter the home, you’ll be greeted by an open-concept first floor with a great room, dining area, and kitchen. The modern kitchen, with flat panel birch cabinetry, granite countertops, decorative tile backsplash, and stainless-steel appliances, is sure to please. Walking through the home, you can enter the 2-car garage near the laundry room. The first floor also offers access to the covered patio. The first floor features the primary bedroom that has an attached primary bathroom with a walk-in shower that has two different tub and shower options. The primary bedroom also offers a spacious walk-in closet for your belongings. Heading up the stairs to the second floor, you’re greeted by the loft. The loft not only leads to the two secondary bedrooms but also includes a secondary bathroom with a bathtub and shower combo. The secondary bedrooms have plenty of space for storage with the walk-in closet and cozy carpeting. Talk to us today to find out how you can make the Sterling your new home.
| 3 days ago | Price changed to $335,330 | |
| 3 days ago | Listing updated with changes from the MLS® | |
| 2 months ago | Listing first seen on site |
All information provided is deemed reliable but is not guaranteed and should be independently verified. Listings courtesy of ACTRIS as distributed by MLS GRID. The Austin Board of REALTORS®, ACTRIS and their affiliates provide the MLS and all content therein "AS IS" and without any warranty, express or implied.
Last checked - 2025-11-06 02:00 PM CST
REQUIRED DMCA NOTICE Member Participant’s IDX site must comply with The Digital Millennium Copyright Act of 1998 by including appropriate notification instructions to users. A Vendor or Member Participant that receives a DMCA notice of infringement must immediately (no later than 24 hours after receipt) notify MLS GRID at DMCAnotice@MLSGrid.com. A Member Participant’s IDX site must include the conspicuous display of the following two paragraphs: The Digital Millennium Copyright Act of 1998, 17 U.S.C. § 512 (the “DMCA”) provides recourse for copyright owners who believe that material appearing on the Internet infringes their rights under U.S. copyright law. If you believe in good faith that any content or material made available in connection with our website or services infringes your copyright, you (or your agent) may send us a notice requesting that the content or material be removed, or access to it blocked. Notices must be sent in writing by email to DMCAnotice@MLSGrid.com. “The DMCA requires that your notice of alleged copyright infringement include the following information: (1) description of the copyrighted work that is the subject of claimed infringement; (2) description of the alleged infringing content and information sufficient to permit us to locate the content; (3) contact information for you, including your address, telephone number and email address; (4) a statement by you that you have a good faith belief that the content in the manner complained of is not authorized by the copyright owner, or its agent, or by the operation of any law; (5) a statement by you, signed under penalty of perjury, that the information in the notification is accurate and that you have the authority to enforce the copyrights that are claimed to be infringed; and (6) a physical or electronic signature of the copyright owner or a person authorized to act on the copyright owner’s behalf. Failure to include all of the above information may result in the delay of the processing of your complaint.

Did you know? You can invite friends and family to your search. They can join your search, rate and discuss listings with you.