936 E 50th STAustin, TX 78751




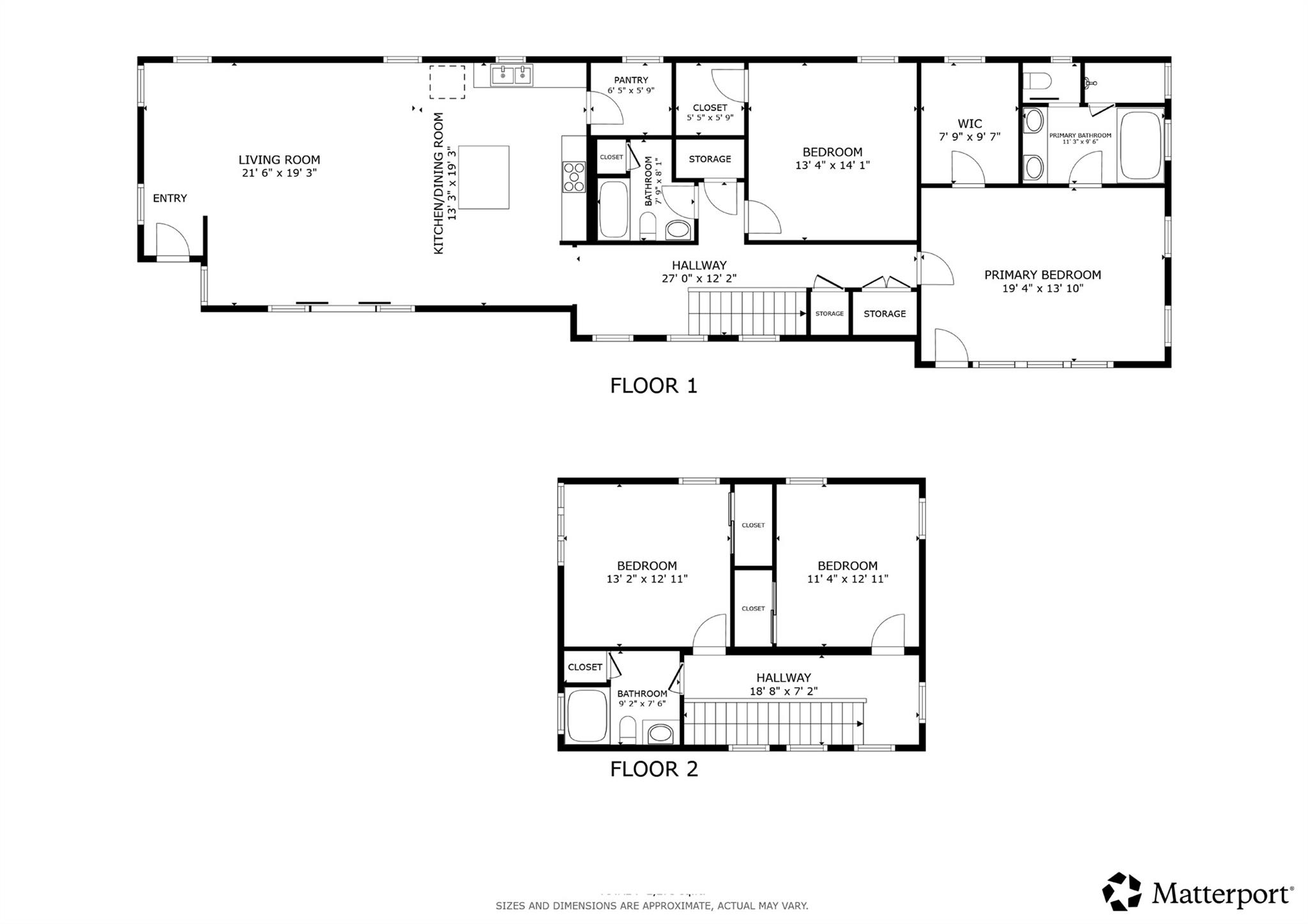
Modern Ridgetop Custom Home – No HOA | 4 Bed | 3 Bath | Large Backyard Stunning custom home by Verde Builders Group in Ridgetop, featuring high ceilings, abundant natural light, and a metal roof. The main floor includes the primary suite, second bedroom, 2 full bathrooms and laundry, with two additional bedrooms and full bathroom upstairs. Concrete floor downstairs & wood floors upstairs. A large backyard with storage addition offers space for entertaining or outdoor living. Builder & Owner Upgrades: Controlled Home Automation (security, lighting, smoke detectors, thermostat), wiring for Camera Security with smartphone access available, Energy Star Appliances & Windows, Spray Foam Insulation & Natural Gas Systems, Tankless Water Heaters & Air Purification Systems, Water-Efficient Appliances & Native Texas Xeriscaping, Low/No VOC materials, Concrete Finished Floors, and optimized natural light. Owner updates include fresh interior/exterior paint (2025), new fence, improved sod & sprinkler system, stained concrete floors, updated fans, refinished front door.Walkable to cafés, restaurants, Mueller Park, farmers market, and Dell Children’s Medical. Easy access to the airport, I-35, Lamar, 183, and MoPac. Turnkey modern luxury in a prime location.
| 5 days ago | Price changed to $959,000 | |
| 5 days ago | Listing updated with changes from the MLS® | |
| a month ago | Listing first seen on site |
All information provided is deemed reliable but is not guaranteed and should be independently verified. Listings courtesy of ACTRIS as distributed by MLS GRID. The Austin Board of REALTORS®, ACTRIS and their affiliates provide the MLS and all content therein "AS IS" and without any warranty, express or implied.
Last checked - 2025-11-05 07:01 AM CST
REQUIRED DMCA NOTICE Member Participant’s IDX site must comply with The Digital Millennium Copyright Act of 1998 by including appropriate notification instructions to users. A Vendor or Member Participant that receives a DMCA notice of infringement must immediately (no later than 24 hours after receipt) notify MLS GRID at DMCAnotice@MLSGrid.com. A Member Participant’s IDX site must include the conspicuous display of the following two paragraphs: The Digital Millennium Copyright Act of 1998, 17 U.S.C. § 512 (the “DMCA”) provides recourse for copyright owners who believe that material appearing on the Internet infringes their rights under U.S. copyright law. If you believe in good faith that any content or material made available in connection with our website or services infringes your copyright, you (or your agent) may send us a notice requesting that the content or material be removed, or access to it blocked. Notices must be sent in writing by email to DMCAnotice@MLSGrid.com. “The DMCA requires that your notice of alleged copyright infringement include the following information: (1) description of the copyrighted work that is the subject of claimed infringement; (2) description of the alleged infringing content and information sufficient to permit us to locate the content; (3) contact information for you, including your address, telephone number and email address; (4) a statement by you that you have a good faith belief that the content in the manner complained of is not authorized by the copyright owner, or its agent, or by the operation of any law; (5) a statement by you, signed under penalty of perjury, that the information in the notification is accurate and that you have the authority to enforce the copyrights that are claimed to be infringed; and (6) a physical or electronic signature of the copyright owner or a person authorized to act on the copyright owner’s behalf. Failure to include all of the above information may result in the delay of the processing of your complaint.

Did you know? You can invite friends and family to your search. They can join your search, rate and discuss listings with you.